
A major residential development incorporating aged care facilities and a lifestyle village is proposed for the last remaining large undeveloped lot zoned low-density residential in Avoca.
An application for a material change of use for a relocatable home park (lifestyle village) and residential care facility was lodged with Bundaberg Regional Council this week.
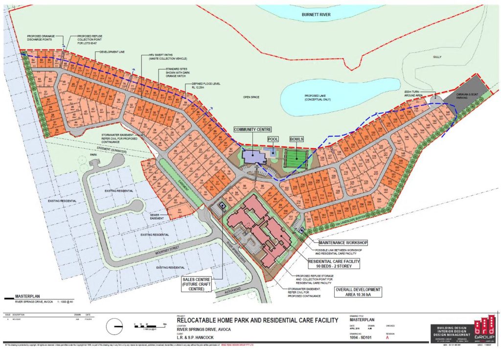
Planning and Development portfolio spokesperson Cr Ross Sommerfeld said the proposal would provide an additional 253 homes on River Springs Drive.
“The applicant is proposing to develop a residential care facility with onsite medical assistance,” Cr Sommerfeld said.
“The one to two storey building would incorporate 90 rooms, each with an ensuite, offering specialised care.
“Surrounding that facility is a lifestyle village providing 163 two and three bedroom homes that can accommodate caravans and RVs.”

The village master plan details a number of communal facilities for the lifestyle village including a community centre, swimming pool and bowling green.
“The application proposes to dedicate more than half of the land to open recreational space, including a lake. This would not only enhance the lifestyle appeal for potential residents but would appropriately utilise flood constrained land along the riverbank.
“Active development for the home sites makes up 46 per cent of the total 22.44 hectare lot.”
Cr Sommerfeld said the aged care facility would provide regular medical support for residents.
“This accommodation would provide support for residents who cannot live independently and who require regular nursing or personal care.”
While not operating as a retirement village the applicant expects that the lifestyle village would predominantly be occupied by people aged 50 and over.
Avoca development responds to demand
Insite SJC Development Consultant Geoff Campbell said, if approved, the development would cater to the future needs of the region.
“Essentially the applicants are responding to a market situation that says there’s a fair bit of vacant residential land developed and they looked for a more contemporary residential land use,” Mr Campbell said.
“They did a bit of study in to what their options were and believe there is a demand there.
“The aged care aspect of it was another market response. New facilities of that nature are always going to be needed with our aging population.”
He said it was more positive news for the Bundaberg Region and growing development interest.
“It’s evidence of confidence and investment in the area.”
With applications for lifestyle villages already approved in Burnett Heads and Bargara Mr Campbell said developments of this kind had the potential to grow the region’s population
“What we’re doing is creating developments which we can market to Australia.
“There’s quite a large number of sites approved but they all have their differences.”
He said this application provided similar facilities in the Bundaberg city area.
“The location, in that West Bundaberg area fairly close to Sugarland and the hospital, is a good spot for these types of development.”

- Other news: Burnett Heads lifestyle village under construction
- Hughes Road extension nears completion









Always great news, much appreciated. Thank you.
Comments are closed.