
A 24-hour gym and childcare facility could revitalise the Westside Shopping Centre which has sat largely vacant since the exit of its supermarket tenancy.
A development application for a Material Change of Use Indoor Sport and Recreation (gym) and Childcare Centre was recently lodged with Bundaberg Regional Council by Lather Industrial Park Pty Ltd.
Under the proposal the shopping centre would be wholly utilised between the new uses and existing tenants.
If approved, the childcare facility would operate from 6 am to 7 pm, accommodating a maximum 26 staff and 100 children, and the indoor gym would operate 24 hours a day, seven days a week.
“The works involve the conversion of part of the existing Westside Shopping Centre (most recently used as a Shop (supermarket) to an Indoor Sport and Recreation (gym) facility,” the application said.
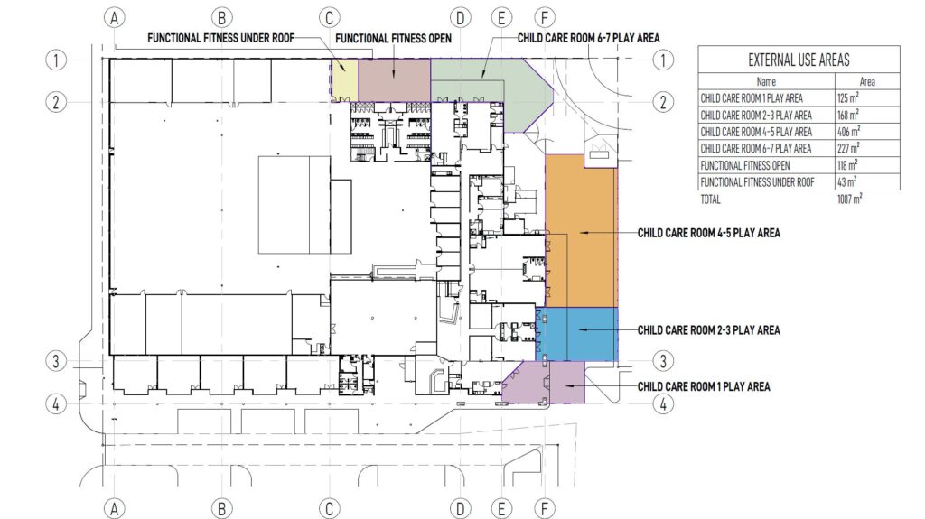
“The extensions include a small mezzanine level above the gym amenities and the use of part of the loading bay for outdoor functional training.
“The application also seeks to utilise a portion of the existing supermarket and shop tenancies for a childcare centre.
“The proposal seeks to retain the existing retail tenancies along the eastern elevation and the amenities facilities.
“The central mall is retained.”
Located next to Stockland Bundaberg and other commercial uses including car dealerships and eateries, the shopping centre site covers 1.247ha.

Among the improvement works proposed is a minor extension to the building to accommodate am outdoor play area for the childcare use.
“The conversion will result in the majority of the tenancy being used as a gym, with the north-eastern portion being used for a childcare centre,” the application said.
“The indoor sport and recreation use (gym) will have a total area of approximately 3521m², including a mezzanine with a GFA of 212m².
“The childcare centre has a use area of 892m², of which 621m² was previously retail.
“To accommodate the outdoor play areas associated with the childcare centre, 15 carparking spaces are proposed to be removed.
“This will result in a total of 185 carparking spaces remaining across the site.”
The application said the proposed extensions to the Westside Shopping Centre would maintain the single storey-built form and provides an outdoor play area associated with the child centre and outdoor training for the gym.
Other news: Transport hub adds to Oreco growth





