
A new workshop and showroom development has been approved for Planet Shade, providing the local business with more room to manufacture its shade products in Bundaberg.
Planet Shade creates approximately 400 shade-related structures per annum including blinds, awnings, marquees, umbrellas and shade structure components.
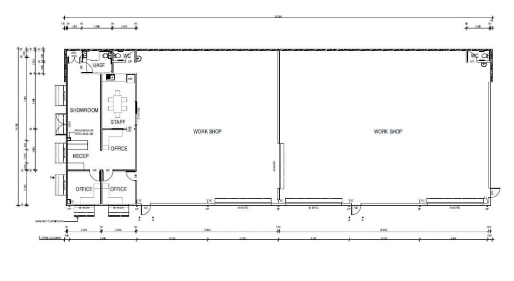
To be situated on 31 Verdant Siding Road, Thabeban, the development will include large workshop spaces, a staff room, offices, a showroom, reception area and more.
The Planet Shade development has the following features:
- Site area of 1200 square metres
- Mixture of Colourbond and weatherboard cladding
- 10 formalised carparks including one designated disabled parking bay
- Four bicycle parks
- Two sealed commercial driveways
- Dedicated two metre-wide landscape strips along both frontages
- Dedicated waste disposal area screened from frontage
- Modern commercial/industrial building finished in corporate colours.
According to its application, the development will incorporate nine full-time staff and one casual staff member.
Hours of operation will be from 7 am to 4.30 pm, Monday to Thursday and 7 am to 3 pm Fridays.

More development news: Oporto approved for Bundaberg





